Opis nieruchomości
Segment narożny + 1x miejsce postojowe nr 02b Segment 2-poziomowy z dużym ogrodem | Morawica k. Krakowa | 71,31 m² + ogród 70 m² | Bez zezwolenia dla obcokrajowców
Na sprzedaż przestronny segment mieszkalny w zabudowie szeregowej, zlokalizowany w Morawicy (gmina Liszki) — w otoczeniu zieleni, a jednocześnie z szybkim dojazdem do Krakowa, Balic, Mnikowa i Modlniczki. Kameralna inwestycja obejmuje tylko 8 lokali, każdy z własnym ogródkiem i miejscem postojowym.
Powierzchnia użytkowa: 71,31 m² Ogród: aż 70 m² — idealny na taras, plac zabaw lub strefę relaksu Miejsce postojowe — w cenie
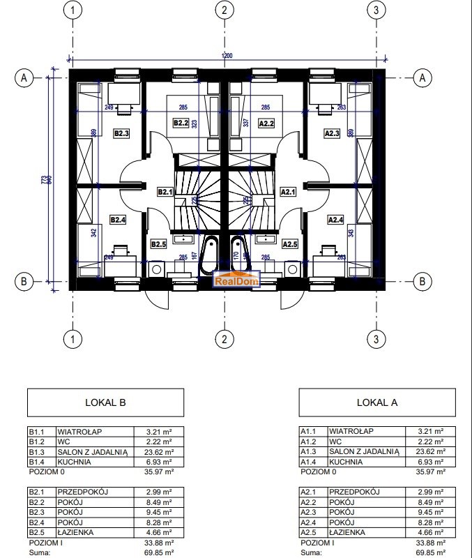
Rozkład pomieszczeń: • Parter: wiatrołap, łazienka, salon z aneksem kuchennym (kuchnia z oknem) • Piętro: 3 ustawne pokoje, duża łazienka • Dodatkowo: strych do przechowywania (wysokość w najwyższym punkcie ponad 2 m)
Standard deweloperski obejmuje: • Tynki gipsowe, wylewki, okna 3-szybowe • Ogrzewanie gazowe z piecem + podłogówka na całej powierzchni • Instalacja pod klimatyzację (bez urządzenia) • Ogrodzony ogródek, utwardzony parking • Duże okno 3-skrzydłowe w salonie z wyjściem na ogród • Woda i prąd doprowadzone również na zewnątrz
Dodatkowe atuty: • Brak czynszu — realna oszczędność • Media z indywidualnymi licznikami • Kanalizacja miejska • Zakup bez zezwolenia dla obcokrajowców • Bezpłatna pomoc doradcy kredytowego — ocena zdolności w 1 dzień
Zobacz zdjęcia wizualizację i prezentacje video.
Dostępność lokalu do potwierdzenia telefonicznie.
Umowa sprzedaży - początek 2027r, ale mamy drugą inwestycję z tym projektem - prawie / umowa w 2026r.
Kontakt: RealDom Nieruchomości 600 160 666 (tel/sms/WhatsApp)
Nota prawna
Opis oferty zawarty na stronie internetowej sporządzany jest na podstawie oględzin nieruchomości oraz informacji uzyskanych od właściciela, może podlegać aktualizacji i nie stanowi oferty określonej w art. 66 i następnych K.C.Szczegóły



