Liszki, Morawica

Mieszkanie na sprzedaż

4 pokoje parter 70,57 m2 7 779,51 zł/m2

549 000 zł

nowa oferta

Opis nieruchomości

REZERWACJA - ZAPYTAJ O SĄSIEDNI SEGMENT Z WIĘKSZYM OGRODEM

Szukasz własnego domu z ogrodem w cenie mieszkania? To Twoja ostatnia szansa na zakup najtańszego lokalu w tej inwestycji. Oferujemy funkcjonalny, dwupoziomowy segment z prywatnym ogródkiem w Morawicy (gmina Liszki) – zaledwie kilka minut od Balic, Mnikowa i Krakowa.

Okazja cenowa – ostatni dostępny lokal 03b

To oferta dla osób, które cenią domowy komfort, ale dysponują budżetem na mieszkanie. Kameralna inwestycja obejmuje tylko 8 lokali, co gwarantuje spokój i sąsiedzką atmosferę.

  • Powierzchnia: 70,57 metrów kwadratowych powierzchni użytkowej.

  • Prywatny ogród: Około 25 metrów kwadratowych przestrzeni na relaks i zabawę.

  • Miejsce postojowe: Wydzielone i utwardzone, wliczone w cenę nieruchomości.

  • Brak ograniczeń: Możliwość zakupu przez obcokrajowców bez dodatkowych zezwoleń.

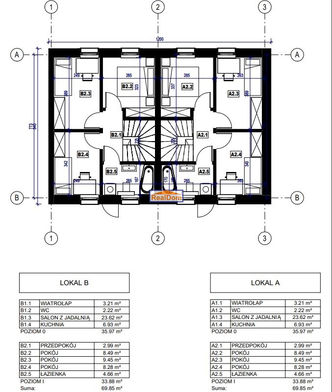
Przemyślany układ pomieszczeń na dwóch poziomach

Wnętrze zostało zaprojektowane z myślą o rodzinie, dzieląc przestrzeń na strefę dzienną i sypialną:

  • Parter: Jasny salon z dużym, 3-skrzydłowym oknem i wyjściem na taras zielony, aneks kuchenny z oknem, łazienka oraz wiatrołap.

  • Piętro: Trzy ustawne pokoje oraz duża, komfortowa łazienka.

  • Strych: Dodatkowa przestrzeń o wysokości ponad 2 metrów, idealna do przechowywania.

Wysoki standard deweloperski

Budynek budowany w nowoczesnej technologii z dbałością o niskie koszty utrzymania:

  • Ogrzewanie: Piec gazowy oraz pełne ogrzewanie podłogowe na całej powierzchni lokalu.

  • Izolacja: Okna 3-szybowe zapewniające ciszę i ciepło.

  • Media: Kanalizacja miejska oraz indywidualne liczniki (brak czynszu administracyjnego).

  • Udogodnienia: Instalacja pod klimatyzację, tynki gipsowe, wylewki oraz wyprowadzenie wody i prądu na zewnątrz.

Lokalizacja i terminy

Morawica to idealny punkt wypadowy – szybki dojazd do obwodnicy Krakowa, lotniska w Balicach oraz centrów handlowych w Modlniczce.

Planowane przeniesienie własności to początek 2027 roku. Szukasz lokalu dostępnego szybciej? Zapytaj o naszą drugą inwestycję tuż obok.

Dlaczego warto wybrać RealDom Nieruchomości?

Zapewniamy bezpłatną pomoc doradcy kredytowego – ocenę Twojej zdolności otrzymasz w ciągu jednego dnia. Pomożemy Ci przejść przez cały proces zakupu bezpiecznie i bez stresu.

Dostępność lokalu należy potwierdzić telefonicznie. W ofercie posiadamy również segmenty gotowe do odbioru.

Kontakt i prezentacja: RealDom Nieruchomości Telefon: 600 160 666 Dostępni pod telefonem, SMS oraz WhatsApp

ZOBACZ INNE SEGMENTY

 

Nota prawna

Opis oferty zawarty na stronie internetowej sporządzany jest na podstawie oględzin nieruchomości oraz informacji uzyskanych od właściciela, może podlegać aktualizacji i nie stanowi oferty określonej w art. 66 i następnych K.C.

Szczegóły

Symbol oferty RLN-MS-9608
Powierzchnia 70,57 m²
Powierzchnia użytkowa 70,57 m²
Liczba pokoi 4
Piętro parter
Rodzaj budynku szeregowiec
Technologia budowlana pustak
Standard
Liczba pięter w budynku 1
Garaż miejsce postojowe przed budynkiem
Stan lokalu deweloperski
Okna PCV
Instalacje nowe
Balkon brak
Liczba tarasów 1
Zagosp. działki częściowo zagospodarowana
Ukształtowanie działki płaska
Stan budynku do wykończenia
Rok budowy 2027
Widok park/skwer
Gaz jest
Woda piec gazowy dwufunkcyjny
Dojazd asfalt
Otoczenie zabudowa jednorodzinna
Ogrzewanie piec dwufunkcyjny
Tarasy taras duży
Usytuowanie dwustronne

Pomieszczenia

Rodzaj kuchni aneks kuchenny - połączony z salonem
Typ łazienki razem z wc
Liczba łazienek 2
Liczba przedpokoi 2

Podobne oferty

Mieszkanie na sprzedaż - Liszki, Chrosna
mieszkanie na sprzedaż - Liszki, Chrosna

RLN-MS-9607

Liszki, Chrosna
mieszkanie na sprzedaż

4 pokoje 70,57 m²

649 000
9 196,54 zł/m2
video
Dodaj
do notatnika
PLN
PLN
PLN
PLN
PLN
PLN
PLN
%
PLN
PLN
PLN

PLN

Dane:

PLN
%

Wynik:

PLN
pierwsza rata
ostatnia rata

Napisz do nas

Proszę wypełnić to pole
Proszę wypełnić to pole
Proszę wypełnić to pole
Proszę wypełnić to pole
Trwa wysyłanie...

Ta strona wykorzystuje pliki cookies w celach statystycznych oraz w celu dostosowania naszych serwisów do indywidualnych potrzeb klientów. Zmiany ustawień dotyczących plików cookie można dokonać w dowolnej chwili modyfikując ustawienia przeglądarki. Korzystanie z tej strony bez zmian ustawień dotyczących cookies oznacza, że będą one zapisane w pamięci urządzenia.

rozumiem