Opis nieruchomości
nr 04b Wyjątkowy segment z ogromnym ogrodem | Morawica k. Krakowa | 71,31 m² + ogród aż 430 m² | Bez zezwolenia dla obcokrajowców
Jeśli marzysz o przestrzeni, prywatności i własnym zielonym azylu — ten segment to prawdziwa perełka. Na sprzedaż dwupoziomowy lokal mieszkalny w zabudowie szeregowej, zlokalizowany w Morawicy (gmina Liszki), z szybkim dojazdem do Krakowa, Balic, Mnikowa i Modlniczki. Kameralna inwestycja obejmuje tylko 8 lokali — każdy z własnym ogródkiem i miejscem postojowym.
Powierzchnia użytkowa: 71,31 m² Ogród: imponujące 430 m² — idealny na taras, plac zabaw, warzywnik, strefę relaksu i więcej Miejsce postojowe — w cenie
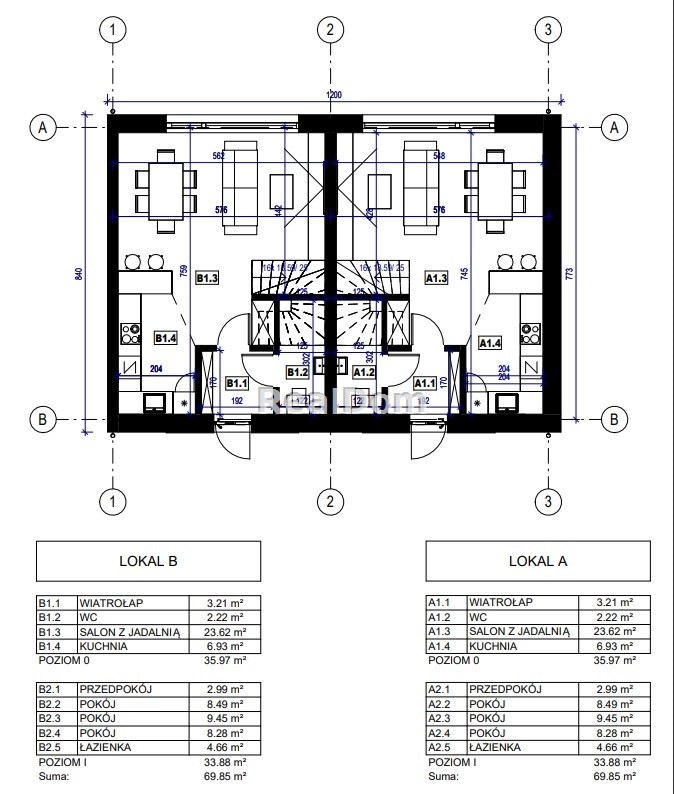
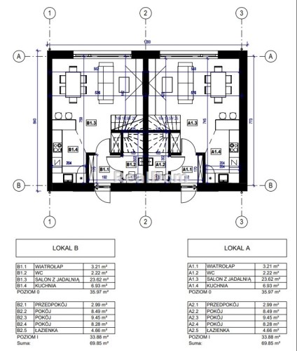
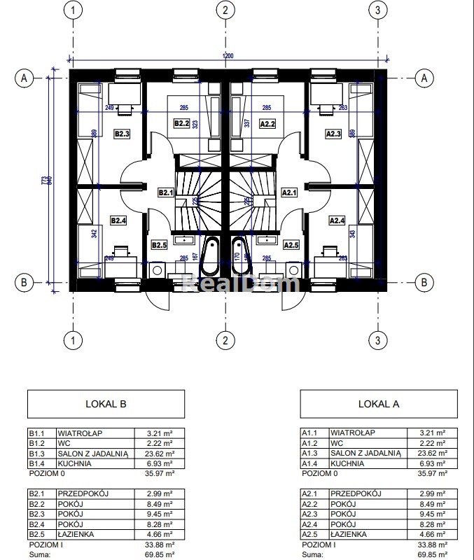
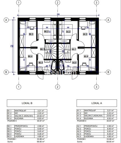
Rozkład pomieszczeń: • Parter: wiatrołap, łazienka, salon z aneksem kuchennym (kuchnia z oknem) • Piętro: 3 ustawne pokoje, duża łazienka • Dodatkowo: strych do przechowywania (wysokość w najwyższym punkcie ponad 2 m)
Standard deweloperski obejmuje: • Tynki gipsowe, wylewki, okna 3-szybowe • Ogrzewanie gazowe z piecem + podłogówka na całej powierzchni • Instalacja pod klimatyzację (bez urządzenia) • Ogrodzony ogródek, utwardzony parking • Duże okno 3-skrzydłowe w salonie z wyjściem na ogród • Woda i prąd doprowadzone również na zewnątrz
Dodatkowe atuty: • Brak czynszu — realna oszczędność • Media z indywidualnymi licznikami • Kanalizacja miejska • Zakup bez zezwolenia dla obcokrajowców • Bezpłatna pomoc doradcy kredytowego — ocena zdolności w 1 dzień
Planowana data sprzedaży - początek 2027r
Szukasz szybciej? mamy prawie gotowy taki segment w sąsiedniej inwestycji.
Dostępność lokalu do potwierdzenia telefonicznie.
Kontakt:
RealDom Nieruchomości 600 160 666 (tel/sms/WhatsApp)
Nota prawna
Opis oferty zawarty na stronie internetowej sporządzany jest na podstawie oględzin nieruchomości oraz informacji uzyskanych od właściciela, może podlegać aktualizacji i nie stanowi oferty określonej w art. 66 i następnych K.C.Szczegóły



