Opis nieruchomości
Na sprzedaż przestronne, funkcjonalne i widokowe mieszkanie 3-pokojowe o powierzchni 55,7 m², zlokalizowane w Krakowie przy ul. Łużyckiej. Do lokalu przynależy piwnica o powierzchni 2,8 m², która jest wliczona w cenę nieruchomości.
Mieszkanie położone jest na 8. piętrze w 10-piętrowym budynku z nowoczesną windą. Blok jest zadbany i ocieplony, posiada czystą i estetyczną klatkę schodową oraz wejście zabezpieczone kodem. Przed budynkiem znajduje się parking dla mieszkańców.
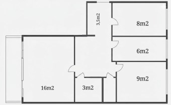
Nieruchomość wyróżnia się funkcjonalnym i bardzo ustawnym rozkładem pomieszczeń oraz pięknymi, otwartymi widokami z każdego pokoju, co zapewnia doskonałe doświetlenie i poczucie przestrzeni. W skład mieszkania wchodzą: przestronny salon, dwie niezależne sypialnie, oddzielna kuchnia, łazienka oraz osobne WC i przedpokój.
W 2020 roku przeprowadzono generalny remont łazienki. Okna są PCV. Ciepła woda oraz ogrzewanie pochodzą z sieci miejskiej. Miesięczne opłaty administracyjne wraz z ogrzewaniem wynoszą około 770 zł.
Lokalizacja zapewnia pełną infrastrukturę – w pobliżu znajdują się liczne sklepy, punkty usługowe, szkoły oraz tereny zielone. Przystanki tramwajowe i autobusowe oddalone są o około 5 minut spacerem, co gwarantuje bardzo dobre połączenie z innymi częściami miasta. Bezpośrednio przy budynku znajdują się alejki spacerowe i dużo zieleni, tworząc przyjazne miejsce do codziennego życia.
Mieszkanie jest wolne od zaraz. Posiadamy klucze – zapraszamy na prezentację w dogodnym terminie.
Oferta dostępna jest wyłącznie w biurze RealDom, co zapewnia profesjonalne i bezpieczne przeprowadzenie całego procesu zakupu. Oferujemy również kompleksowe wsparcie w uzyskaniu kredytu hipotecznego.
Zapraszamy do kontaktu:
RealDom Nieruchomości
tel. +48 600 160 666
Nota prawna
Opis oferty zawarty na stronie internetowej sporządzany jest na podstawie oględzin nieruchomości oraz informacji uzyskanych od właściciela, może podlegać aktualizacji i nie stanowi oferty określonej w art. 66 i następnych K.C.Szczegóły



