Kraków, Bieżanów-Prokocim, Prokocim, Bieżanowska

Mieszkanie na sprzedaż

2 pokoje parter 38,27 m2 16 199,95 zł/m2

619 972 zł

video

Opis nieruchomości

WYRÓŻNIONA OFERTA: MIESZKANIE Z PRYWATNĄ ENKLAWĄ - ogrodem tylko 1!

NR 2 - Metraż: 38,27 m² | Taras ziemny / Ogród: 72 m² | Cena: 619 974 zł brutto.

To mieszkanie to prawdziwa rzadkość na krakowskim rynku! Idealne dla osób, które marzą o własnym ogrodzie, nie rezygnując z zalet życia w mieście.

  • Wyjątkowo duży ogród: Aż 72 m² powierzchni do Twojej dyspozycji – to niemal dwukrotność metrażu samego mieszkania! Idealne miejsce na taras, plac zabaw dla dziecka czy bezpieczny wybieg dla pupila.

  • Słoneczne i jasne: Dzięki dużym przeszkleniom wnętrze jest doskonale doświetlone naturalnym światłem o każdej porze dnia, co optycznie powiększa przestrzeń i buduje pozytywną energię.

  • Funkcjonalność: 2 ustawne pokoje w układzie, który pozwala na maksymalne wykorzystanie każdego metra.

 

NOWOCZESNA INWESTYCJA W SERCU PROKOCIMIA – GOTOWE MIESZKANIA Z KLIMATYZACJĄ!

Szukasz komfortowego mieszkania w spokojnej, zielonej okolicy, a jednocześnie z szybkim dostępem do centrum Krakowa? Zapraszamy do zapoznania się z naszą najnowszą inwestycją w dzielnicy Podgórze - Prokocim.

To kameralny, nowoczesny budynek o wysokim standardzie wykończenia, położony w otoczeniu niskiej zabudowy. Idealne miejsce dla rodzin oraz osób szukających wytchnienia od miejskiego zgiełku.

DLACZEGO WARTO TU ZAMIESZKAĆ?

  • Komfort termiczny w cenie: Każde mieszkanie wyposażone jest w klimatyzację oraz nowoczesne ogrzewanie podłogowe, które zwiększa ustawność wnętrz i estetykę.

  • Etap budowy: Mieszkania są już w stanie deweloperskim – możesz planować wykańczanie!

  • Wysoki standard budynku: Efektowna klatka schodowa, cichobieżna winda, monitoring dla Twojego bezpieczeństwa oraz podgrzewany podjazd do garażu.

  • Jasne i przestronne wnętrza: Duże przeszklenia zapewniają doskonałe doświetlenie, a wyflizowane balkony / tarasy  i ogrodzone ogródki - stanowią idealną strefę relaksu.

  • Oszczędność na start: Kupujący nie płaci podatku PCC (2%). Dodatkowo otrzymujesz 5-letnią ochronę na wady.


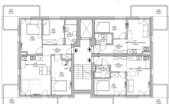
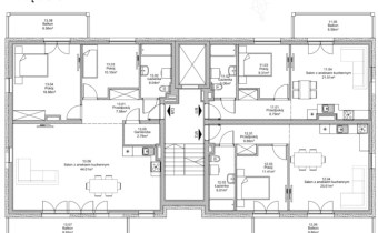
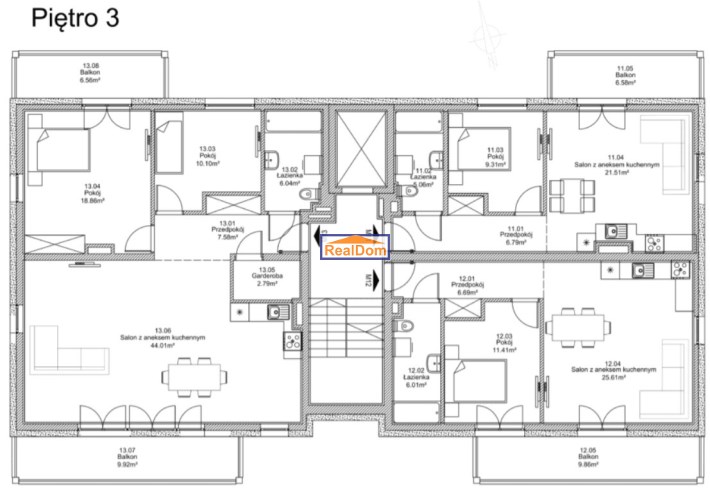
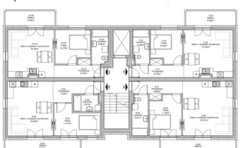
LISTA MIESZKAŃ - ceny i dostępność do potwierdzenia na bieżąco telefonicznie lum mailem

Nr Metraż Pokoje Dodatki (Balkon/Ogród) Cena całkowita Status
2 38,27 m² 2 Ogród 72 m² 619 974 zł Dostępne
4 33,03 m² 2 Balkon 9,70 m² 561 510 zł Dostępne
5 38,33 m² 2 Balkon 13,03 m² 632 445 zł Dostępne
7 42,66 m² 2 Balkon 6,58 m² 678 294 zł Dostępne
9 45,44 m² 2 Balkon 9,90 m² 722 496 zł Dostępne
10 42,15 m² 2 Balkon 6,58 m² 678 615 zł Dostępne
11 42,67 m² 2 Balkon 6,58 m² 699 788 zł Dostępne
12 49,72 m² 2 Balkon 9,86 m² 785 576 zł Dostępne
13 89,38 m² 3 Balkony 16,48 m² 1 349 638 zł Dostępne

Wygodne miejsca w garażu podziemnym w cenie od 45 000 zł do 55 000 zł.


DOSKONAŁA LOKALIZACJA (PODGÓRZE - PROKOCIM)

  • Komunikacja: autobusy tuż obok w kilka minut lub ul. Wielicka 10 minut spacerem do licznych przystanków tramwajowych i autobusowych. Dodatkowy atut: bliskość stacji PKP Prokocim gwarantuje błyskawiczny dojazd do centrum Krakowa.

  • Rekreacja: W niedalekiej odległości znajduje się Zalew Bagry – idealne miejsce na letni wypoczynek i spacery.

  • Infrastruktura: W okolicy liczne sklepy, punkty usługowe przedszkola, żłobki, oraz szkoły. Sklep Żabka jest tuż obok. W rejonie są też markety Kaufland, Carrefour i inne.

BEZPIECZEŃSTWO I DOŚWIADCZENIE

Posiadamy ponad 15-let doświadczenia na rynku. Oferujemy kompleksowe wsparcie na każdym etapie zakupu:

  1. Dbamy o bezpieczeństwo prawne transakcji i zapewniamy Doradztwo kredytowe: Profesjonalna pomoc w uzyskaniu finansowania.

  2. Wykończenie pod klucz: Polecamy sprawdzonych i rzetelnych wykonawców.

Zadzwoń i umów się na prezentację! Twoje nowe mieszkanie w Krakowie czeka.

Kontakt do RealDom

+ 48 600-160-666 (telefon, SMS, WhatsApp)

Nota prawna

Opis oferty zawarty na stronie internetowej sporządzany jest na podstawie oględzin nieruchomości oraz informacji uzyskanych od właściciela, może podlegać aktualizacji i nie stanowi oferty określonej w art. 66 i następnych K.C.

Szczegóły

Symbol oferty RLN-MS-9619
Powierzchnia 38,27 m²
Powierzchnia użytkowa 38,22 m²
Powierzchnia balkonów/tarasów 72,00 m²
Liczba pokoi 2
Piętro parter
Rodzaj budynku blok
Technologia budowlana pustak
Standard
Opłaty wg liczników prąd, woda
Liczba pięter w budynku 3
Garaż garaż pod budynkiem
Stan lokalu deweloperski
Stan prawny Własność
Okna PCV 3 komorowe
Instalacje nowe
Balkon brak
Liczba tarasów 1
Rok budowy 2026
Widok na osiedle
Gaz brak
Woda tak - miejska
Dojazd ASFALTOWA
Otoczenie zabudowa jednorodzinna
Ogrzewanie C.O. lokalne
Winda tak
Liczba wind 1
Tarasy taras duży
Drzwi antywłamaniowe tak

Pomieszczenia

Wysokość pomieszczeń 2,50 m
Rodzaj kuchni aneks kuchenny - połączony z salonem
Typ łazienki razem z wc
Liczba łazienek 1
Liczba przedpokoi 1

Podobne oferty

Mieszkanie na sprzedaż - Kraków, Bieżanów-Prokocim, Prokocim, Bieżanowska
mieszkanie na sprzedaż - Kraków, Bieżanów-Prokocim, Prokocim, Bieżanowska

RLN-MS-9602

Kraków, Bieżanów-Prokocim,…
mieszkanie na sprzedaż

2 pokoje 49,72 m²

785 576
15 800,00 zł/m2
video
Dodaj
do notatnika
Mieszkanie na sprzedaż - Kraków, Bieżanów-Prokocim, Prokocim, Bieżanowska
mieszkanie na sprzedaż - Kraków, Bieżanów-Prokocim, Prokocim, Bieżanowska

RLN-MS-9601

Kraków, Bieżanów-Prokocim,…
mieszkanie na sprzedaż

2 pokoje 45,44 m²

722 496
15 900,00 zł/m2
video
Dodaj
do notatnika
Mieszkanie na sprzedaż - Kraków, Bieżanów-Prokocim, Prokocim, Bieżanowska
mieszkanie na sprzedaż - Kraków, Bieżanów-Prokocim, Prokocim, Bieżanowska

RLN-MS-9600

Kraków, Bieżanów-Prokocim,…
mieszkanie na sprzedaż

2 pokoje 42,66 m²

678 294
15 900,00 zł/m2
video
Dodaj
do notatnika
Mieszkanie na sprzedaż - Kraków, Bieżanów-Prokocim, Prokocim, Bieżanowska
mieszkanie na sprzedaż - Kraków, Bieżanów-Prokocim, Prokocim, Bieżanowska

RLN-MS-9599

Kraków, Bieżanów-Prokocim,…
mieszkanie na sprzedaż

2 pokoje 38,33 m²

632 445
16 500,00 zł/m2
video
Dodaj
do notatnika
PLN
PLN
PLN
PLN
PLN
PLN
PLN
%
PLN
PLN
PLN

PLN

Dane:

PLN
%

Wynik:

PLN
pierwsza rata
ostatnia rata

Napisz do nas

Proszę wypełnić to pole
Proszę wypełnić to pole
Proszę wypełnić to pole
Proszę wypełnić to pole
Trwa wysyłanie...

Ta strona wykorzystuje pliki cookies w celach statystycznych oraz w celu dostosowania naszych serwisów do indywidualnych potrzeb klientów. Zmiany ustawień dotyczących plików cookie można dokonać w dowolnej chwili modyfikując ustawienia przeglądarki. Korzystanie z tej strony bez zmian ustawień dotyczących cookies oznacza, że będą one zapisane w pamięci urządzenia.

rozumiem