Opis nieruchomości
REZERWACJA. 03b SEGMENT Z MAŁYM OGRÓDKIEM
Domowy komfort w cenie mieszkania – segment 2-poziomowy z ogródkiem | Morawica k. Krakowa
Marzysz o własnym ogródku, przestrzeni i spokoju, ale nie chcesz rezygnować z szybkiego dojazdu do Krakowa? Ta oferta spełni Twoje oczekiwania.
Planowane przeniesie własności początek 2027.
Szukasz od zaraz ? zapytaj o ten projekt mamy obok drugą inwestycję.
Na sprzedaż funkcjonalny segment w zabudowie szeregowej, położony w Morawicy (gmina Liszki) — zaledwie kilka minut od Balic, Mnikowa, Modlniczki i centrum Krakowa. Kameralna inwestycja obejmuje tylko 8 lokali, każdy z prywatnym ogródkiem i miejscem postojowym.
Co zyskujesz? • 70,57 m² powierzchni użytkowej • Ogródek ok. 25 m² — idealny na poranną kawę, zabawy z dziećmi lub relaks po pracy • Wydzielone miejsce postojowe — w cenie • Zakup bez zezwolenia dla obcokrajowców
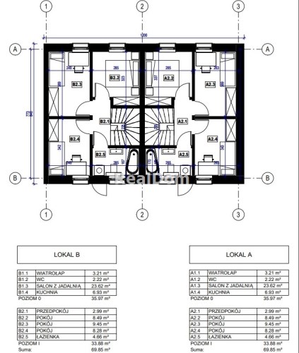
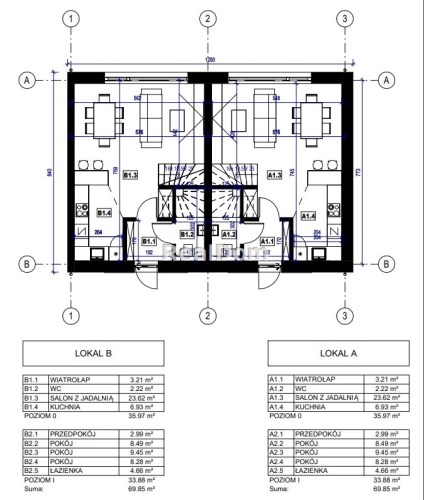
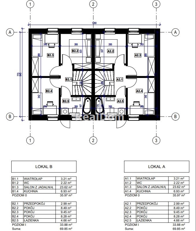
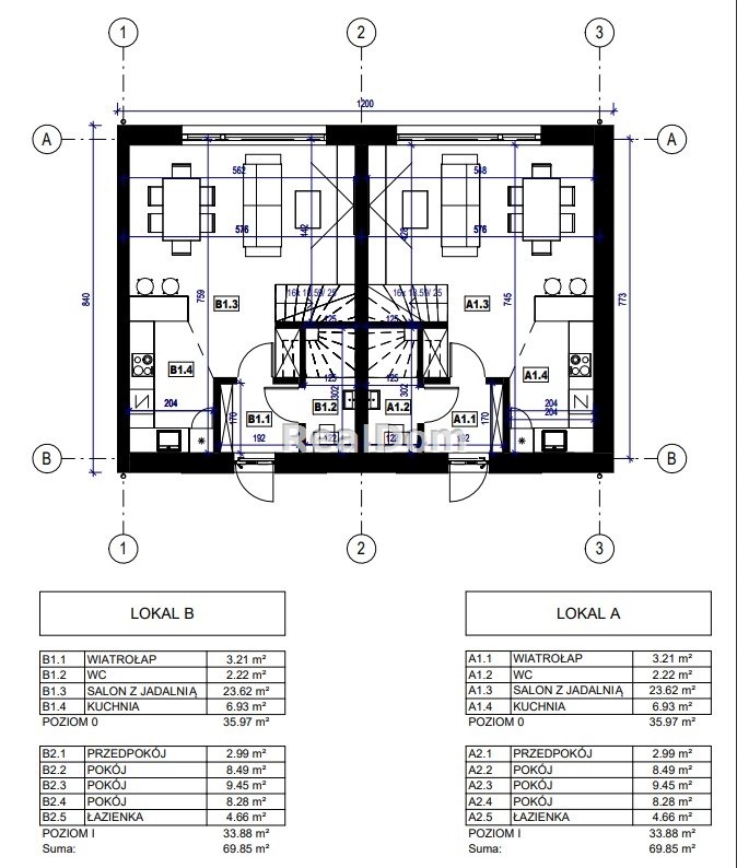
Przemyślany układ pomieszczeń: • Parter: wiatrołap, łazienka, jasny salon z aneksem kuchennym (kuchnia z oknem) • Piętro: trzy ustawne pokoje + duża łazienka • Dodatkowo: strych z wysokością ponad 2 m — świetny na przechowywanie
Standard, który robi różnicę: • Tynki gipsowe, wylewki, okna 3-szybowe • Ogrzewanie gazowe z piecem + podłogówka na całej powierzchni • Instalacja pod klimatyzację (bez urządzenia) • Ogrodzony ogródek, utwardzony parking • Duże okno 3-skrzydłowe w salonie — naturalne światło i wyjście na taras zielony • Woda i prąd dostępne również na zewnątrz
Dodatkowe plusy: • Brak czynszu — więcej środków w Twoim portfelu • Media z indywidualnymi licznikami • Kanalizacja miejska • Bezpłatna pomoc doradcy kredytowego — ocena zdolności w 1 dzień
Dostępność lokalu do potwierdzenia telefonicznie. Zapytaj również o segmenty narożne z większymi ogrodami!
Zadzwoń, napisz SMS lub wiadomość na WhatsApp: RealDom Nieruchomości 600 160 666
Nota prawna
Opis oferty zawarty na stronie internetowej sporządzany jest na podstawie oględzin nieruchomości oraz informacji uzyskanych od właściciela, może podlegać aktualizacji i nie stanowi oferty określonej w art. 66 i następnych K.C.Szczegóły



