Kraków, Bieżanów-Prokocim, Prokocim, Bieżanowska

Mieszkanie na sprzedaż

3 pokoje 3 piętro 89,38 m2 15 100,00 zł/m2

1 349 638 zł

video

Opis nieruchomości

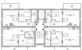
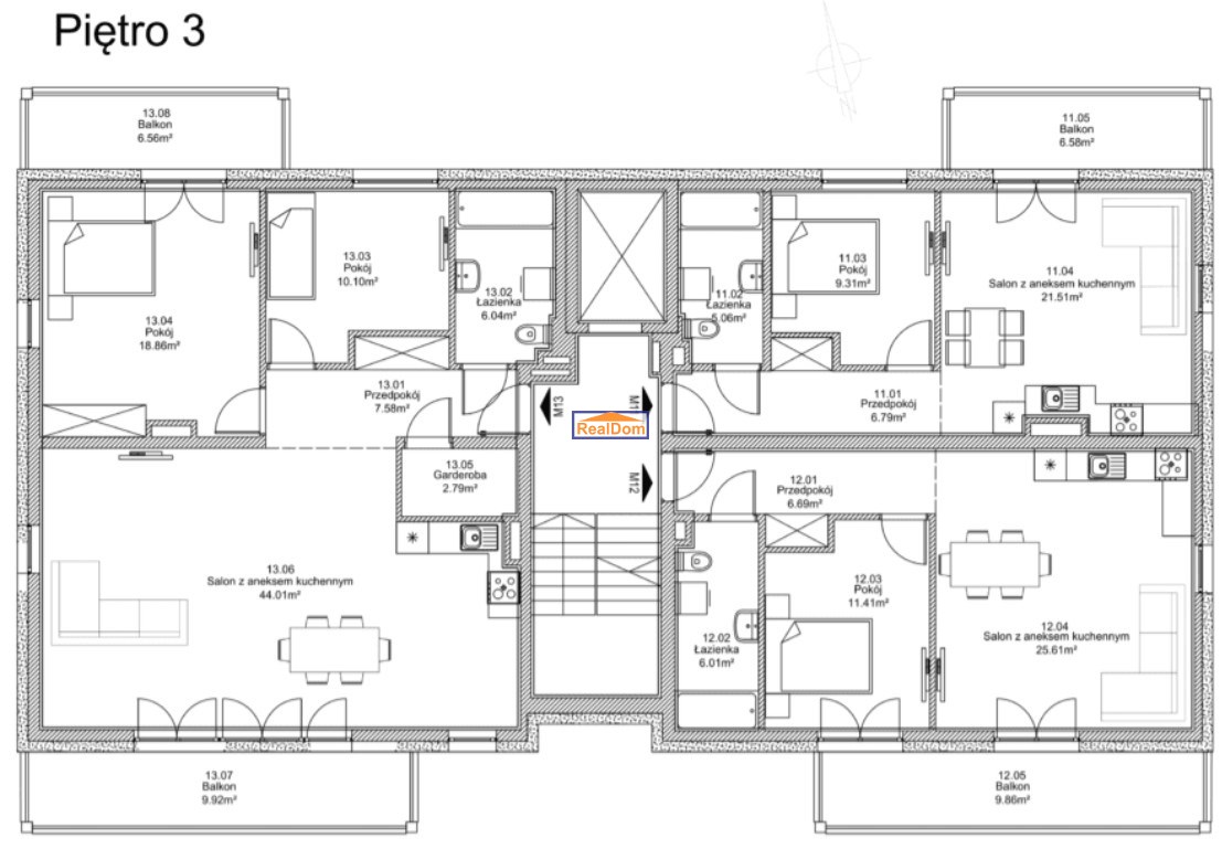
REZERWACJA NR 13 PREMIUM: PRZESTRZEŃ I PRESTIŻ NA OSTATNIM PIĘTRZE

Metraż: 89,38 m² | Piętro: 3 (Ostatnie) | 2 Balkony: 16,48 m² ( 6,56 oraz 9,92) | Cena: 1 349 638 zł

Prezentujemy wyjątkowy apartament o powierzchni blisko 90 m², zlokalizowany na ostatnim piętrze naszej nowoczesnej inwestycji w Prokocimiu. To idealna propozycja dla dużej rodziny lub osób ceniących ponadprzeciętną przestrzeń i prywatność.

  • Wyjątkowa Przestrzeń: 3 ustawne, duże pokoje dają nieograniczone możliwości aranżacyjne – od przestronnego salonu z jadalnią po komfortowe sypialnie i gabinet.

  • Dwa Niezależne Balkony: Łączna powierzchnia balkonów to aż 16,48 m²! Zapewniają one dostęp do świeżego powietrza z różnych stron świata i pozwalają na stworzenie dwóch niezależnych stref relaksu. Komfort bez kompromisów.

Szukasz mieszkania na wygodnym 1 piętrze, które oferuje więcej prywatności i widok na okolicę? To dwupokojowe mieszkanie łączy w sobie przestronność z funkcjonalnym układem.

  • Idealny metraż: Ponad 42 m² to przestrzeń, która pozwala na wydzielenie wygodnej strefy dziennej oraz dużej sypialni.

  • Prywatny balkon: Balkon o powierzchni 6,58 m² to idealne miejsce na poranną kawę. Wykończony wysokiej jakości flizami, spójny z nowoczesną elewacją budynku.

 

NOWOCZESNA INWESTYCJA W SERCU PROKOCIMIA – GOTOWE MIESZKANIA Z KLIMATYZACJĄ!

Szukasz komfortowego mieszkania w spokojnej, zielonej okolicy, a jednocześnie z szybkim dostępem do centrum Krakowa? Zapraszamy do zapoznania się z naszą najnowszą inwestycją w dzielnicy Podgórze - Prokocim.

To kameralny, nowoczesny budynek o wysokim standardzie wykończenia, położony w otoczeniu niskiej zabudowy. Idealne miejsce dla rodzin oraz osób szukających wytchnienia od miejskiego zgiełku.

DLACZEGO WARTO TU ZAMIESZKAĆ?

  • Komfort termiczny w cenie: Każde mieszkanie wyposażone jest w klimatyzację oraz nowoczesne ogrzewanie podłogowe, które zwiększa ustawność wnętrz i estetykę.

  • Etap budowy: Mieszkania są już w stanie deweloperskim – możesz planować wykańczanie!

  • Wysoki standard budynku: Efektowna klatka schodowa, cichobieżna winda, monitoring dla Twojego bezpieczeństwa oraz podgrzewany podjazd do garażu.

  • Jasne i przestronne wnętrza: Duże przeszklenia zapewniają doskonałe doświetlenie, a wyflizowane balkony / tarasy  i ogrodzone ogródki - stanowią idealną strefę relaksu.

  • Oszczędność na start: Kupujący nie płaci podatku PCC (2%). Dodatkowo otrzymujesz 5-letnią ochronę na wady.


LISTA MIESZKAŃ - ceny i dostępność do potwierdzenia na bieżąco telefonicznie lum mailem

Nr Metraż Pokoje Dodatki (Balkon/Ogród) Cena całkowita Status
2 38,27 m² 2 Ogród 72 m² 619 974 zł Dostępne
4 33,03 m² 2 Balkon 9,70 m² 561 510 zł Dostępne
5 38,33 m² 2 Balkon 13,03 m² 632 445 zł Dostępne
7 42,66 m² 2 Balkon 6,58 m² 678 294 zł Dostępne
9 45,44 m² 2 Balkon 9,90 m² 722 496 zł Dostępne
10 42,15 m² 2 Balkon 6,58 m² 678 615 zł Dostępne
11 42,67 m² 2 Balkon 6,58 m² 699 788 zł Dostępne
12 49,72 m² 2 Balkon 9,86 m² 785 576 zł Dostępne
13 89,38 m² 3 Balkony 16,48 m² 1 349 638 zł Dostępne

Wygodne miejsca w garażu podziemnym w cenie od 45 000 zł do 55 000 zł.


DOSKONAŁA LOKALIZACJA (PODGÓRZE - PROKOCIM)

  • Komunikacja: autobusy tuż obok w kilka minut lub ul. Wielicka 10 minut spacerem do licznych przystanków tramwajowych i autobusowych. Dodatkowy atut: bliskość stacji PKP Prokocim gwarantuje błyskawiczny dojazd do centrum Krakowa.

  • Rekreacja: W niedalekiej odległości znajduje się Zalew Bagry – idealne miejsce na letni wypoczynek i spacery.

  • Infrastruktura: W okolicy liczne sklepy, punkty usługowe przedszkola, żłobki, oraz szkoły. Sklep Żabka jest tuż obok. W rejonie są też markety Kaufland, Carrefour i inne.

BEZPIECZEŃSTWO I DOŚWIADCZENIE

Posiadamy ponad 15-let doświadczenia na rynku. Oferujemy kompleksowe wsparcie na każdym etapie zakupu:

  1. Dbamy o bezpieczeństwo prawne transakcji i zapewniamy Doradztwo kredytowe: Profesjonalna pomoc w uzyskaniu finansowania.

  2. Wykończenie pod klucz: Polecamy sprawdzonych i rzetelnych wykonawców.

Zadzwoń i umów się na prezentację! Twoje nowe mieszkanie w Krakowie czeka.

Kontakt do RealDom

+ 48 600-160-666 (telefon, SMS, WhatsApp)

Nota prawna

Opis oferty zawarty na stronie internetowej sporządzany jest na podstawie oględzin nieruchomości oraz informacji uzyskanych od właściciela, może podlegać aktualizacji i nie stanowi oferty określonej w art. 66 i następnych K.C.

Szczegóły

Symbol oferty RLN-MS-9618
Powierzchnia 89,38 m²
Powierzchnia użytkowa 89,38 m²
Powierzchnia balkonów/tarasów 16,60 m²
Liczba pokoi 3
Piętro 3
Rodzaj budynku blok
Technologia budowlana pustak
Standard
Opłaty wg liczników prąd, woda
Liczba pięter w budynku 3
Garaż garaż pod budynkiem
Stan lokalu deweloperski
Stan prawny Własność
Okna PCV 3 komorowe
Instalacje nowe
Balkon jest
Liczba balkonów 2
Liczba tarasów 2
Rok budowy 2026
Widok na osiedle
Gaz brak
Woda tak - miejska
Dojazd ASFALTOWA
Otoczenie zabudowa jednorodzinna
Ogrzewanie C.O. lokalne
Winda tak
Liczba wind 1
Tarasy taras duży
Drzwi antywłamaniowe tak

Pomieszczenia

Wysokość pomieszczeń 2,50 m
Rodzaj kuchni aneks kuchenny - połączony z salonem
Typ łazienki razem z wc
Liczba łazienek 1
Liczba przedpokoi 1

Podobne oferty

Mieszkanie na sprzedaż - Kraków, Dębniki, Kliny, Spacerowa
mieszkanie na sprzedaż - Kraków, Dębniki, Kliny, Spacerowa

RLN-MS-9586

Kraków, Dębniki, Kliny,…
mieszkanie na sprzedaż

7 pokoi 122,00 m²

1 298 000
10 639,34 zł/m2
nowa oferta
Dodaj
do notatnika
Mieszkanie na sprzedaż - Kraków, Krowodrza, Juliusza Lea
mieszkanie na sprzedaż - Kraków, Krowodrza, Juliusza Lea

RLN-MS-9577

Kraków, Krowodrza, Juliusza…
mieszkanie na sprzedaż

3 pokoje 67,38 m²

1 547 000
22 959,34 zł/m2
nowa oferta
Dodaj
do notatnika
Mieszkanie na sprzedaż - Kraków, Stare Miasto, Kleparz, Mariana Langiewicza
mieszkanie na sprzedaż - Kraków, Stare Miasto, Kleparz, Mariana Langiewicza

RLN-MS-9536

Kraków, Stare Miasto,…
mieszkanie na sprzedaż

5 pokoi 130,00 m²

1 399 000
10 761,54 zł/m2
Dodaj
do notatnika
Mieszkanie na sprzedaż - Kraków, Krowodrza, św. Teresy
mieszkanie na sprzedaż - Kraków, Krowodrza, św. Teresy

RLN-MS-9531

Kraków, Krowodrza, św.…
mieszkanie na sprzedaż

3 pokoje 54,93 m²

1 318 320
24 000,00 zł/m2
video
Dodaj
do notatnika
PLN
PLN
PLN
PLN
PLN
PLN
PLN
%
PLN
PLN
PLN

PLN

Dane:

PLN
%

Wynik:

PLN
pierwsza rata
ostatnia rata

Napisz do nas

Proszę wypełnić to pole
Proszę wypełnić to pole
Proszę wypełnić to pole
Proszę wypełnić to pole
Trwa wysyłanie...

Ta strona wykorzystuje pliki cookies w celach statystycznych oraz w celu dostosowania naszych serwisów do indywidualnych potrzeb klientów. Zmiany ustawień dotyczących plików cookie można dokonać w dowolnej chwili modyfikując ustawienia przeglądarki. Korzystanie z tej strony bez zmian ustawień dotyczących cookies oznacza, że będą one zapisane w pamięci urządzenia.

rozumiem