Opis nieruchomości
NR 5 - OFERTA PREMIUM: KOMFORTOWE 2 POKOJE Z DUŻYM BALKONEM / TARASEM
Metraż: 38,33 m² | Piętro: 1 | Balkon: 13,03 m² | Cena: 632 445 zł
To mieszkanie to idealna propozycja dla osób, które cenią sobie przestrzeń wypoczynkową na świeżym powietrzu. Unikalny, bardzo duży balkon o powierzchni ponad 13 m² stanowi naturalne przedłużenie salonu.
-
Przestronny balkon: 13,03 m² wyflizowanej powierzchni pozwala na swobodną aranżację letniego salonu z meblami ogrodowymi i dużą ilością roślin.
-
-
Idealne na start lub pod wynajem: Doskonały rozkład sprawia, że mieszkanie jest niezwykle praktyczne i łatwe do aranżacji.
-
Duży balkon: Aż 9,70 m² powierzchni dodatkowej! Balkon jest wyflizowany i gotowy do urządzenia kącika kawowego.
NOWOCZESNA INWESTYCJA W SERCU PROKOCIMIA – GOTOWE MIESZKANIA Z KLIMATYZACJĄ!
Szukasz komfortowego mieszkania w spokojnej, zielonej okolicy, a jednocześnie z szybkim dostępem do centrum Krakowa? Zapraszamy do zapoznania się z naszą najnowszą inwestycją w dzielnicy Podgórze - Prokocim.
To kameralny, nowoczesny budynek o wysokim standardzie wykończenia, położony w otoczeniu niskiej zabudowy. Idealne miejsce dla rodzin oraz osób szukających wytchnienia od miejskiego zgiełku.
DLACZEGO WARTO TU ZAMIESZKAĆ?
-
Komfort termiczny w cenie: Każde mieszkanie wyposażone jest w klimatyzację oraz nowoczesne ogrzewanie podłogowe, które zwiększa ustawność wnętrz i estetykę.
-
Etap budowy: Mieszkania są już w stanie deweloperskim – możesz planować wykańczanie!
-
Wysoki standard budynku: Efektowna klatka schodowa, cichobieżna winda, monitoring dla Twojego bezpieczeństwa oraz podgrzewany podjazd do garażu.
-
Jasne i przestronne wnętrza: Duże przeszklenia zapewniają doskonałe doświetlenie, a wyflizowane balkony / tarasy i ogrodzone ogródki - stanowią idealną strefę relaksu.
-
Oszczędność na start: Kupujący nie płaci podatku PCC (2%). Dodatkowo otrzymujesz 5-letnią ochronę na wady.
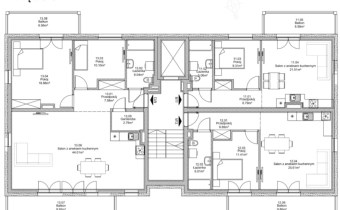
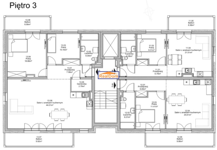
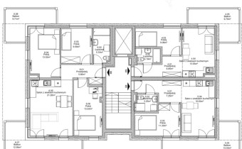
LISTA MIESZKAŃ - ceny i dostępność do potwierdzenia na bieżąco telefonicznie lum mailem
| Nr | Metraż | Pokoje | Dodatki (Balkon/Ogród) | Cena całkowita | Status |
| 2 | 38,27 m² | 2 | Ogród 72 m² | 619 974 zł | Dostępne |
| 4 | 33,03 m² | 2 | Balkon 9,70 m² | 561 510 zł | Dostępne |
| 5 | 38,33 m² | 2 | Balkon 13,03 m² | 632 445 zł | Dostępne |
| 7 | 42,66 m² | 2 | Balkon 6,58 m² | 678 294 zł | Dostępne |
| 9 | 45,44 m² | 2 | Balkon 9,90 m² | 722 496 zł | Dostępne |
| 10 | 42,15 m² | 2 | Balkon 6,58 m² | 678 615 zł | Dostępne |
| 11 | 42,67 m² | 2 | Balkon 6,58 m² | 699 788 zł | Dostępne |
| 12 | 49,72 m² | 2 | Balkon 9,86 m² | 785 576 zł | Dostępne |
| 13 | 89,38 m² | 3 | Balkony 16,48 m² | 1 349 638 zł | Dostępne |
Wygodne miejsca w garażu podziemnym w cenie od 45 000 zł do 55 000 zł.
DOSKONAŁA LOKALIZACJA (PODGÓRZE - PROKOCIM)
-
Komunikacja: autobusy tuż obok w kilka minut lub ul. Wielicka 10 minut spacerem do licznych przystanków tramwajowych i autobusowych. Dodatkowy atut: bliskość stacji PKP Prokocim gwarantuje błyskawiczny dojazd do centrum Krakowa.
-
Rekreacja: W niedalekiej odległości znajduje się Zalew Bagry – idealne miejsce na letni wypoczynek i spacery.
-
Infrastruktura: W okolicy liczne sklepy, punkty usługowe przedszkola, żłobki, oraz szkoły. Sklep Żabka jest tuż obok. W rejonie są też markety Kaufland, Carrefour i inne.
BEZPIECZEŃSTWO I DOŚWIADCZENIE
Posiadamy ponad 15-let doświadczenia na rynku. Oferujemy kompleksowe wsparcie na każdym etapie zakupu:
-
Dbamy o bezpieczeństwo prawne transakcji i zapewniamy Doradztwo kredytowe: Profesjonalna pomoc w uzyskaniu finansowania.
-
Wykończenie pod klucz: Polecamy sprawdzonych i rzetelnych wykonawców.
Zadzwoń i umów się na prezentację! Twoje nowe mieszkanie w Krakowie czeka.
Kontakt do RealDom
+ 48 600-160-666 (telefon, SMS, WhatsApp)
Nota prawna
Opis oferty zawarty na stronie internetowej sporządzany jest na podstawie oględzin nieruchomości oraz informacji uzyskanych od właściciela, może podlegać aktualizacji i nie stanowi oferty określonej w art. 66 i następnych K.C.Szczegóły



