Opis nieruchomości
1b m9 - 28,16m2 Można wydzielić sypialnię.Mieszkanie z 2024 roku. Parter z ogródkiem w Bronowicach | 28,16 m² + ogródek 23 m² JAKO ZIELONY TARAS + piwnica | Kameralne osiedle | Gotowe do odbioru mieszkania z meblami i do wykończenia.
Na sprzedaż funkcjonalne mieszkanie na parterze w nowoczesnym, niskim budynku (tylko 3 kondygnacje), zlokalizowanym w spokojnej części Bronowic — tuż obok Prądnika i Krowodrzy. Idealna propozycja dla osób szukających prywatności, zieleni i świetnej lokalizacji z szybkim dostępem do centrum Krakowa.
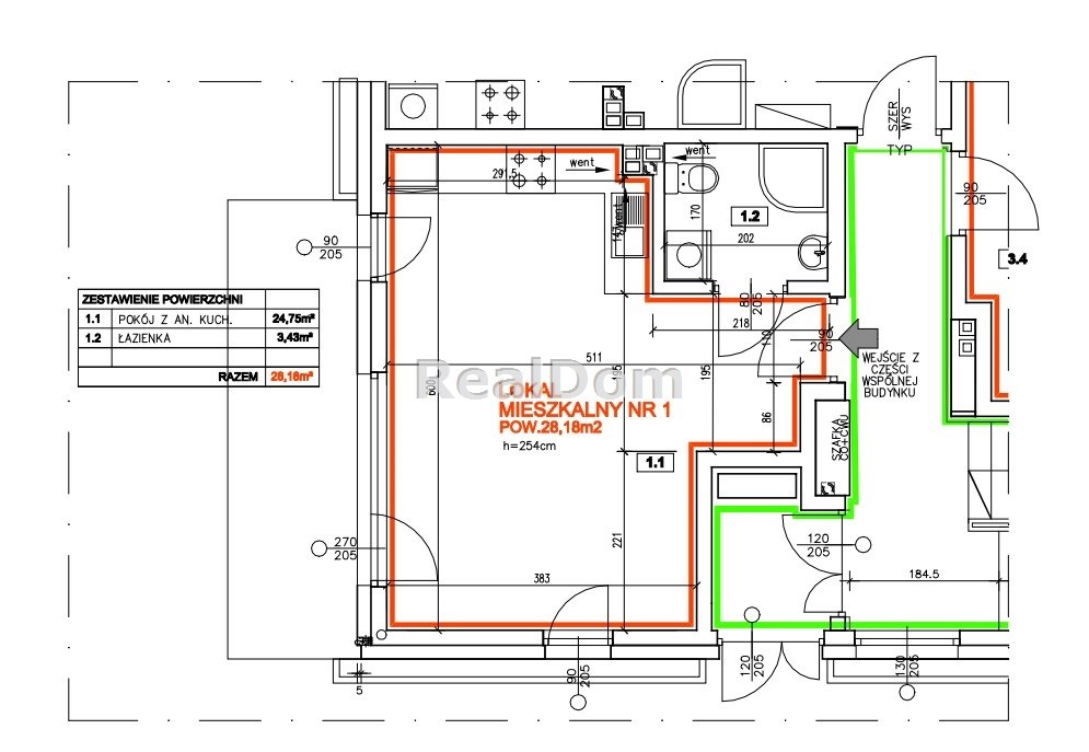
Powierzchnia lokalu: 28,16 m² Ogródek: ponad 23 m² — na wyłączność Piwnica: 2,49 m² — przynależna do mieszkania
Rozkład umożliwia wydzielenie osobnej sypialni, co czyni mieszkanie wyjątkowo funkcjonalnym mimo kompaktowego metrażu. Stan deweloperski — do indywidualnego wykończenia według własnego gustu.
Lokalizacja: • Rejon ulic Jasnogórska / Radzikowskiego • 10 minut spacerem do Galerii Bronowice, IKEA, siłowni i restauracji • Doskonała komunikacja miejska — szybki dojazd do centrum
Osiedle: • Kameralna zabudowa — tylko 3 kondygnacje • Teren ogrodzony, dużo zieleni wokół • Spokojne otoczenie z dala od miejskiego zgiełku • Mieszkania 1–4 pokojowe gotowe do odbioru — bez ryzyka opóźnień
Dodatkowe atuty: • Balkon, taras lub ogródek w każdym mieszkaniu • Przemyślane układy pomieszczeń • Ogrzewanie i ciepła woda centralne • Miejsce postojowe w garażu podziemnym — dostępne w atrakcyjnej cenie • Kompleksowe wsparcie kredytowe — szybka ocena zdolności i bezpieczny zakup
Zapraszamy do kontaktu: RealDom Nieruchomości 600 160 666 (tel/sms/WhatsApp)
Nota prawna
Opis oferty zawarty na stronie internetowej sporządzany jest na podstawie oględzin nieruchomości oraz informacji uzyskanych od właściciela, może podlegać aktualizacji i nie stanowi oferty określonej w art. 66 i następnych K.C.Szczegóły



