Opis nieruchomości
Segment z 2024 roku z dużym ogrodem jako zielonym tarasem.
Mieszkanie jak dom - zakup lokalu bez pozwolenia / dla obcokrajowców.
Zapraszamy do skorzystania z wyjątkowej okazji zakupu narożnego segmentu położonego przy granicy Krakowa, tuż obok malowniczego lasu.
Lokalizacja: Ochojno, obok Krakowa, Swoszowic, Libertowa, Opatkowic i Wróblowic.
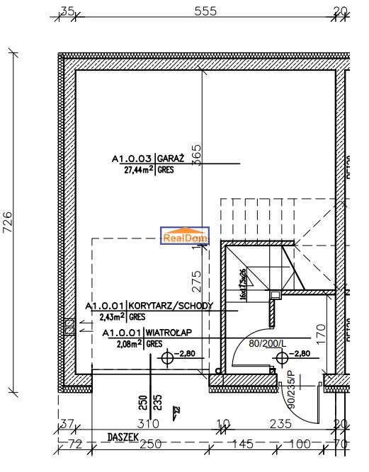
Oferowany segment:
-
Narożny segment, pierwszy od wjazdu, z dużym ogrodem.
4 pokoje, 2 łazienki, strych, garaż, parking na 2 auta od frontu -
Powierzchnia całkowita około 100 m² .
Układ pomieszczeń:
-
Słoneczny pokój dzienny z trzema oknami balkonowymi i dostępem do ogrodu - tarasu ziemnego.
-
Kuchnia otwarta z oknem.
-
Dwie łazienki z oknami.
-
Trzy sypialnie.
-
Garaż o powierzchni ponad 30 m², idealny do adaptacji na dodatkowy pokój, biuro domowe czy siłownię.
Standard:
-
Nowoczesny piec i system ogrzewania podłogowego na całej powierzchni, w tym w garażu.
-
Pełne media: prąd, gaz, woda, kanalizacja miejska.
-
Szybki internet zapewniony ( jest doprowadzona instalacja )
Bezpieczeństwo zakupu:
-
Klucze można odebrać w dniu zakupu,
-
Lokal z kompletem dokumentów.
-
Zwolnienie z podatku PCC (2%).
Nasza firma zapewnia pełną obsługę w uzyskaniu kredytu.
Zakup lokalu mieszkalnego z ogródkiem jest dostępny również dla obcokrajowców bez konieczności uzyskiwania dodatkowych pozwoleń.
Zapraszamy do kontaktu:
-
Telefon / SMS / WhatsApp: 600 160 666
-
Email: biuro@realdom.pl
-
Strona internetowa RealDom www.realdom.pl
Mamy klucze - zapraszamy.
Oferta na wyłączność.
Aktualne ceny i dostępność: wyślij SMS na 600160666 o treści OCHOJNO odeślemy link
Nota prawna
Opis oferty zawarty na stronie internetowej sporządzany jest na podstawie oględzin nieruchomości oraz informacji uzyskanych od właściciela, może podlegać aktualizacji i nie stanowi oferty określonej w art. 66 i następnych K.C.Szczegóły



