















Opis nieruchomości
Segment z 2024 roku ! - super kameralne osiedle.
Zapraszamy do skorzystania z wyjątkowej okazji zakupu narożnego segmentu położonego przy granicy Krakowa, tuż obok malowniczego lasu.
Lokalizacja: Ochojno, obok Krakowa, Swoszowic, Libertowa, Opatkowic i Wróblowic.
Oferowany segment:
-
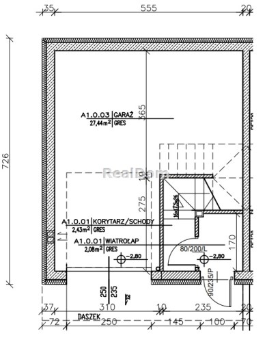
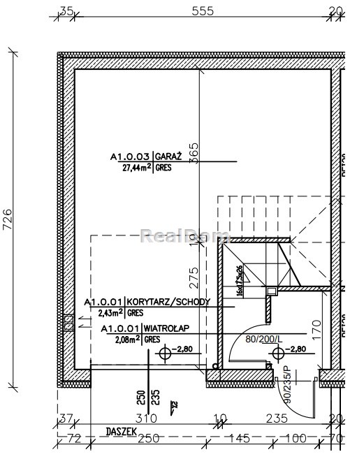
Narożny segment, pierwszy od wjazdu, z dużym ogrodem.
-
Powierzchnia całkowita około 100 m² - jako taras ziemny.
-
Dodatkowa przestrzeń na strychu.
Układ pomieszczeń:
-
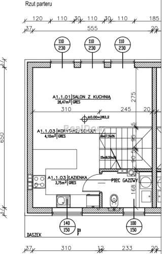
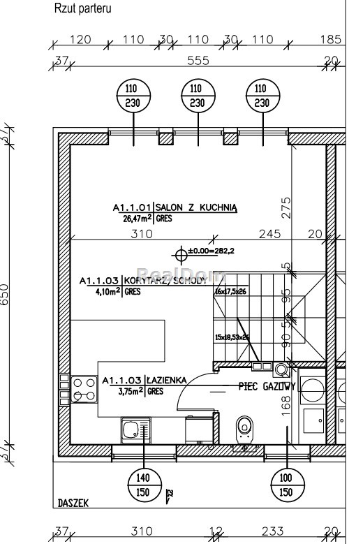
Słoneczny pokój dzienny z trzema oknami balkonowymi i dostępem do ogrodu.
-
Kuchnia otwarta z oknem.
-
Dwie łazienki z oknami.
-
Trzy sypialnie.
-
Garaż o powierzchni ponad 30 m², idealny do adaptacji na dodatkowy pokój, biuro domowe czy siłownię.
Standard:
-
Nowoczesny piec i system ogrzewania podłogowego na całej powierzchni, w tym w garażu.
-
Pełne media: prąd, gaz, woda, kanalizacja miejska.
-
Szybki internet zapewniony.
Bezpieczeństwo zakupu:
-
Nieruchomość bez obciążeń.
-
5 lat rękojmi na wady.
-
Lokal z odbiorem do użytkowania i kompletem dokumentów.
-
Zwolnienie z podatku PCC (2%).
Cena obejmuje:
-
Lokal w standardzie deweloperskim: 4 pokoje z aneksem kuchennym, 2 łazienki, duży ogród, garaż, parking przed garażem.
-
Możliwość parkowania dodatkowych samochodów przed budynkiem (teren na wyłączność).
Nasza firma zapewnia pełną obsługę w uzyskaniu kredytu, w tym możliwość skorzystania z dostępnych dofinansowań. Zakup segmentu jest dostępny również dla obcokrajowców bez konieczności uzyskiwania dodatkowych pozwoleń.
Zapraszamy do kontaktu:
-
Telefon: 600 160 66
-
Email: biuro@realdom.pl
Polecamy ten segment w urokliwej okolicy tuż obok lasu i przy granicy z Krakowem!
Kontakt tel/ sms/ WhatsApp
+48600160666
Aktualne ceny i dostępność: wyślij SMS na 600160666 o treści OCHOJNO odeślemy link
Nota prawna
Opis oferty zawarty na stronie internetowej sporządzany jest na podstawie oględzin nieruchomości oraz informacji uzyskanych od właściciela, może podlegać aktualizacji i nie stanowi oferty określonej w art. 66 i następnych K.C.Szczegóły




